Alle afbeeldingen Brochure downloaden

Warreboslaan 29, Surhuisterveen

€ 595.000,- k.k.
124 m2 | 960 m2 | 5 kamers | Woonhuis

Omschrijving

*16 april Open Huis van 17.00u - 19.30u. Graag aanmelden bij interesse.*

Vrijstaand en landelijk wonen. Waar karakter, modern én duurzaamheid samenkomen.

Gewoonweg genieten. Landelijk gelegen, vrijstaand wonen en dan ook nog eens duurzaam met energielabel A+ én een moderne afwerking. Je gaat natuurlijk voor de sfeer van het huis en de locatie maar deze woonboerderij is ook op de toekomst voorbereid, gasloos, met warmtepomp, laadpaal en zonnepanelen. Bovendien is het woonhuis levensloopbestendig met een grote slaapkamer en badkamer op de begane grond. Maak kennis met deze sfeervolle woonboerderij op een mooie plek aan de rand van het dorp Surhuisterveen.

Indeling

Begane grond
- karakteristieke entree
- hal met toegang naar de slaapkamer, bijkeuken en woonkamer
- meterkast voorzien van moderne groepenkast met 13 groepen
- bijkeuken met witgoedaansluiting, opstelling warmtepomp met 200 liter boiler en waterontharder
- moderne toiletruimte met wandcloset en fonteintje

Woonkamer en keuken
Vanuit de hal loop je over de moderne pvc vloer met comfortabele vloerverwarming de royale leefruimte binnen. Fraai en modern afgewerkt en met veel lichtinval. Vanuit de kamer heb je zicht over de groene tuin en er is volop ruimte voor een tv- en zithoek. De openslaande tuindeuren verbinden op zomerse dagen binnen met buiten en verlengen je woonruimte. De open keuken met landelijke opstelling biedt je alle gewenste comfort om heerlijk te kokkerellen. De keukenopstelling beschikt over een inductiekookplaat met 5 zones en afzuigkap, drie ovens - elektrische oven, grill-oven en een hete lucht oven, een vaatwasser, een Quooker kraan, een koelvries-combinatie, soft-close lades met geïntegreerde besteklades, twee Le Mans hoekkasten en een granieten werkblad. In een handige nis heb je extra bergruimte met een apothekerskast en de combi-oven-magnetron. Ook hier zijn openslaande tuindeuren die je verbinden met het Friese buitenleven.

Slaapkamer en badkamer - Levensloopbestendig wonen
Op de begane grond is een grote tweepersoonsslaapkamer met vaste kast, balkenplafond en ook hier zijn openslaande tuindeuren. Vroeger was dit de eetkamer van de boerderij. Vanuit de slaapkamer kom je in de badkamer, verbonden met een schuifdeur. De vloer van de badkamer is met betonciré afgewerkt en is voorzien van een grote inloopdouche, een praktische nis voor de handdoeken, een luxe wastafelmeubel met waskom, lichtspots en een elektrische handdoekradiator.

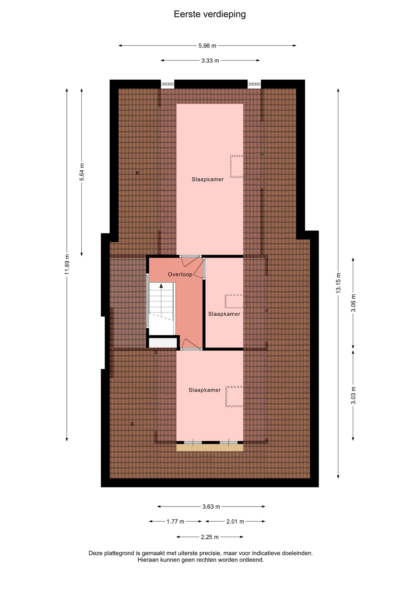
1e verdieping
- overloop met daglicht en vaste kast
- tienerslaapkamer met vaste kasten en knieschotberging
- kleine kamer voor gebruik als werkkamer of garderobekamer
- tweepersoonsslaapkamer met knieschotberging en planken vloer. De WTW-opstelling bevindt zich in deze kamer.

Tuin, berging en vrijstaande garage
De tuin omzoomt de woning en is aangelegd met sierbestrating, gazon en diverse heesters. Op het ruime terras vind je altijd een fijne plek in de zon of schaduw, met vrij uitzicht over de landerijen – hier ervaar je rust en ruimte. De vrijstaande berging biedt plaats aan fietsen en tuinspullen en beschikt over een overkapping waar het heerlijk ontspannen is. Echt genieten van het buitenleven. De vrijstaande garage met oprit is in spouw gebouwd, voorzien van een betonvloer, vliering én elektrisch bedienbare openslaande deuren. Daarnaast is er een 3-fasen oplaadpaal aanwezig – volledig voorbereid op elektrisch rijden.

Overige informatie
- warmtepomp 2019 met 200 liter boiler
- 20 zonnepanelen uit 2019
- energielabel A+ 23.1.2035

Omgeving
Landelijk wonen, maar wel met alle voorzieningen goed bereikbaar. Naast de landelijke ligging woon je hier verrassend centraal. Surhuisterveen biedt alles wat je dagelijks nodig hebt – en meer. Het dorp kent een gevarieerd winkelaanbod met supermarkten, speciaalzaken en een levendig winkelcentrum waar landelijke ketens en lokale ondernemers elkaar versterken. Van verse producten bij de ambachtelijke bakker en slager tot sfeervolle cafés en restaurants: het dorp bruist. Ook op het gebied van onderwijs en sport is het aanbod compleet. Met meerdere basisscholen, een middelbare school en diverse sportverenigingen is er voor iedere leeftijd volop keuze. Daarnaast zijn er sportscholen en is er een buitenzwembad, heerlijk voor de kinderen. Medische voorzieningen zijn eveneens goed geregeld, met onder meer een huisartsenpraktijk, tandarts en apotheek in het dorp. De omgeving maakt het plaatje compleet. Binnen enkele minuten ben je midden in het coulissenlandschap, omringd door uitgestrekte natuur en rust. In de nabijgelegen Friese Wouden vind je prachtige wandel- en fietsroutes langs bossen, landerijen en karakteristieke dorpen. En wie de stad wil opzoeken, Drachten, Groningen of Leeuwarden zijn snel en goed bereikbaar.

Interesse gewekt? Maak met ons een afspraak voor bezichtiging. Denk aan je eigen NVM aankoopmakelaar.

Uit een overeenkomst vloeien pas verplichtingen voort als koper én verkoper de overeenkomst hebben ondertekend. Een mondelinge overeenkomst tussen een particuliere koper en particuliere verkoper is niet rechtsgeldig. Met andere woorden er is geen koop zolang het koopcontract niet door beide partijen is ondertekend. De Meetinstructie is gebaseerd op de NEN2580. De Meetinstructie is bedoeld om een meer eenduidige manier van meten toe te passen voor het geven van een indicatie van de gebruiksoppervlakte. De Meetinstructie sluit verschillen in meetuitkomsten niet volledig uit, door bijvoorbeeld interpretatieverschillen, afrondingen of beperkingen bij het uitvoeren van de meting. Hoewel deze woningpresentatie met de grootst mogelijke zorg is samengesteld blijft de mogelijkheid bestaan dat er fouten en/of onvolledigheden in de omschrijving aanwezig zijn. Noch de verkoper, noch ons kantoor aanvaarden in dit geval enige aansprakelijkheid.

Kenmerken

Bouwvorm

  • Soort objectWoonhuis
  • Soort woningEengezinswoning
  • Type woningVrijstaande woning
  • Bouwjaar1938
  • BouwvormBestaande bouw
  • LiggingenAan rustige weg, Open ligging, Buiten bebouwde kom, Landelijk gelegen

Indeling

  • Woonoppervlakte124 m2
  • Perceeloppervlakte960 m2
  • Inhoud396 m3
  • Aantal kamers5
  • Aantal slaapkamers4
  • Aantal badkamers1

Energie

  • EnergieklasseA
  • VerwarmingVloerverwarming gedeeltelijk, Electrische verwarming, Warmtepomp
  • IsolatieDakisolatie, Muurisolatie, Vloerisolatie, HR glas
  • CombiketelNee

Buitenruimte

  • TuinTuin rondom
  • HoofdtuinTuin rondom
  • AchteromJa
  • Kwaliteit tuinVerzorgd

Bergruimte

  • Schuur / BergingVrijstaand hout
  • VoorzieningenVoorzien van elektra
  • IsolatieGeen isolatie
  • Totaal aantal1

Parkeergelegenheid

  • Parkeer faciliteitenOp eigen terrein
  • GarageVrijstaand steen
  • Capaciteit1
  • Garages1

Dak

  • Soort dakSchilddak
  • Materiaal dakPannen

Overig

  • Permanente bewoningJa
  • Onderhoud binnenGoed tot uitstekend
  • Onderhoud buitenGoed
  • Huidig gebruikWoonruimte
  • Huidige bestemmingWoonruimte

Video

Locatie