Alle afbeeldingen Brochure downloaden

Korenmolen 173, Drachten

€ 335.000,- k.k.
79 m2 | 205 m2 | 4 kamers | Woonhuis

Omschrijving

Op een mooie woonstand, dichtbij het centrum van Drachten, tref je deze twee-onder-één-kapwoning met garage aan op de Korenmolen in de rustige wijk De Peppel. Je hebt veel privacy door de diepe achtertuin en aan de straatzijde geen inkijk van andere woningen. Bovendien super centraal gelegen, op loopafstand van het centrum van Drachten en toch ben je ook snel op de uitvalsweg naar de A7. Een heerlijke plek om te wonen voor starters, kleine gezinnen en senioren. Wij nemen je graag mee voor een kennismaking.

Indeling

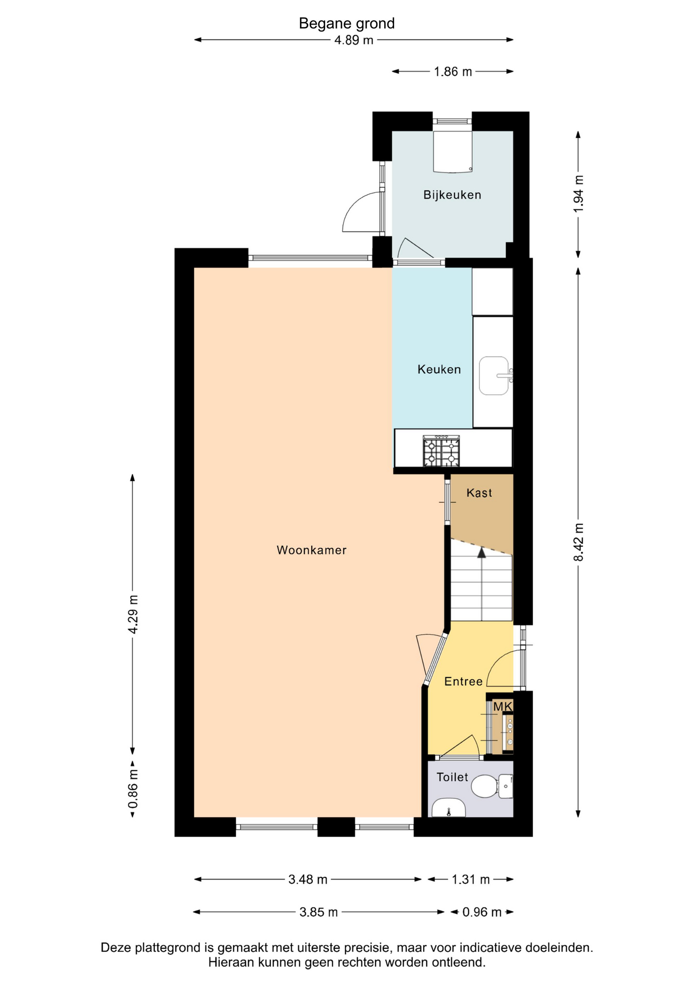
Begane grond
- overdekte zijentree
- hal
- toilet met fonteintje
- meterkast met 4 moderne groepen
- trapopgang

Woonkamer en keuken
In de woonkamer valt het licht goed naar binnen door de "doorzon-stand". Voor in de woonkamer is de plek voor een zithoek met TV, hier heb je een vrije zichtlijn naar de straat zonder inkijk van andere woningen. Veel provisie kun je kwijt in de trapkast. Achter in de woonkamer bij de open keuken is ruimte voor een grote gezinstafel. De keuken heeft een moderne opstelling met een granieten werkblad en kunststof spatwand. De L-keukenopstelling is van alle gemakken voorzien zoals een combi oven/magnetron, een gaskookplaat met afzuigkap, een koelvries-combi en een vaatwasser. De apparaten zijn van de A-merken Liebherr en Siemens. Op de vloer liggen antraciet plavuizen. Vanuit de keuken kom je in de aangebouwde bijkeuken. Praktisch voor de inloop en garderobe.

1e verdieping
- overloop
- een tweepersoonsslaapkamer aan de voorzijde met dakkapel
- een tweepersoonsslaapkamer aan de achterzijde met kantelraam
- een derde slaapkamer aan de achterzijde
- badkamer met douchehoek, wastafel en witgoedaansluiting. De badkamer zit boven de toiletruimte, realisatie voor een toilet boven is hierdoor eenvoudiger te realiseren.

Zolderverdieping
- vlizotrap
- ruime geïsoleerde berging met cv-opstelling (2011) en opstelling mechanische ventilatie

Garage
Een vrijstaande houten garage met sectionale elektrisch bedienbare deur. Ideaal voor je auto en de fietsen maar ook handig voor een creatieve hobby. Achter de garage is een overkapping voor de kliko's. Er is een lange oprit voor de auto, deze deel je met de buren, naar de garage.

Tuin
De achtertuin is verzorgd aangelegd met gazon, sierbestrating, terras, borders en goede beschutting. Door de diepe achtertuin heb je veel privacy. Achter de woning is een sloot en aan de overkant van de sloot staat een loods die in gebruik is voor kleinschalige verkoop van o.a. witgoed. Heerlijk rustig dus. De achtertuin is op het noorden, maar diep genoeg voor veel zon en op hete dagen dus ook een schaduwplekje bij het huis. De voortuin is onderhoudsarm aangelegd met groene border en grindborder.

Overige informatie
- energielabel B geldig tot 17-11-2035
- eigen cv-combiketel AWB HR uit 2011
- begane grond en verdiepingsvloeren in beton uitgevoerd
- geheel geïsoleerde woning – isolatieglas HR, vloer-, gevel- en dakisolatie
- de woning heeft een eigen webiste: korenmolen173.nl

Omgeving
Het woonhuis is centraal in het dorp gelegen, even verderop in de straat is een speelveldje aanwezig, je woont nabij alle voorzieningen van het dorp, het theater en sportfaciliteiten en je bent snel op de uitvalsweg naar de A7 - Groningen/Heerenveen/Leeuwarden.

Interessant? Alleen een bezichtiging geeft de beste indruk. Maak een afspraak voor een bezichtiging en denk aan je eigen NVM aankoopmakelaar.

Uit een overeenkomst vloeien pas verplichtingen voort als koper én verkoper de overeenkomst hebben ondertekend. Een mondelinge overeenkomst tussen een particuliere koper en particuliere verkoper is niet rechtsgeldig. Met andere woorden er is geen koop zolang het koopcontract niet door beide partijen is ondertekend. De Meetinstructie is gebaseerd op de NEN2580. De Meetinstructie is bedoeld om een meer eenduidige manier van meten toe te passen voor het geven van een indicatie van de gebruiksoppervlakte. De Meetinstructie sluit verschillen in meetuitkomsten niet volledig uit, door bijvoorbeeld interpretatieverschillen, afrondingen of beperkingen bij het uitvoeren van de meting. Hoewel deze woningpresentatie met de grootst mogelijke zorg is samengesteld blijft de mogelijkheid bestaan dat er fouten en/of onvolledigheden in de omschrijving aanwezig zijn. Noch de verkoper, noch ons kantoor aanvaarden in dit geval enige aansprakelijkheid.

Kenmerken

Bouwvorm

  • Soort objectWoonhuis
  • Soort woningEengezinswoning
  • Type woningTwee onder één kapwoning
  • Bouwjaar1993
  • BouwvormBestaande bouw
  • LiggingenAan rustige weg, In centrum, In woonwijk

Indeling

  • Woonoppervlakte79 m2
  • Perceeloppervlakte205 m2
  • Inhoud309 m3
  • Aantal kamers4
  • Aantal slaapkamers3
  • Aantal badkamers1

Energie

  • EnergieklasseB
  • VerwarmingCV ketel
  • C.V.-KetelAWB
  • Bouwjaar C.V.-Ketel2011
  • WarmwaterCV ketel
  • IsolatieDakisolatie, Muurisolatie, Vloerisolatie, Grotendeels dubbelglas
  • CombiketelJa
  • BrandstofGas
  • EigendomEigendom

Buitenruimte

  • TuinAchtertuin, Voortuin, Zijtuin
  • HoofdtuinAchtertuin
  • Oppervlakte105 m2
  • Ligging hoofdtuinNoord
  • AchteromNee
  • Kwaliteit tuinVerzorgd

Parkeergelegenheid

  • Parkeer faciliteitenParkeervergunningen, Op eigen terrein
  • GarageVrijstaand hout
  • Capaciteit1
  • Garages1

Dak

  • Soort dakZadeldak
  • Materiaal dakPannen

Overig

  • Permanente bewoningJa
  • Onderhoud binnenGoed
  • Onderhoud buitenGoed
  • Huidig gebruikWoonruimte
  • Huidige bestemmingWoonruimte

Video

Locatie